Preserving Akron’s Past, Building Its Future
Photos by Jason Smalcer @ LSP Photography
The Goodrich Adaptive Reuse Renovation
AVID Architects transformed a former BF Goodrich tire factory into The Goodrich: a 139-unit mixed-use residential community that redefines downtown living.
Quick Facts
Client: Osborne Capital Group
Location: Akron, Ohio
Size: 139 residential units + mixed-use amenities
Services: Architectural Design, MEP Engineering
Completion: 2022
Market Sector: Mixed-Use Residential, Adaptive Reuse, Historic Preservation
Key Insights
Historic industrial buildings often provide flexible structural frameworks that support modern residential layouts.
Early collaboration with preservation consultants helps streamline historic tax credit approvals.
Adaptive reuse projects require careful coordination of modern building systems within historic structures.
Phased construction planning allows for continued occupancy, unlocking opportunities in partially active sites.
The Opportunity
Downtown Akron needed additional housing to support a connected, walkable city. A vacant portion of the former BF Goodrich tire factory offered the right scale and location.
The building’s expansive industrial structure provided an ideal framework for residential conversion. Large floor plates, generous ceiling heights, and abundant window openings created strong potential for modern apartment layouts.
Because the property is historically significant, the rehabilitation also needed to comply with the Secretary of the Interior’s Standards for Rehabilitation in order to qualify for Ohio Historic Preservation Tax Credits.
The project presented additional complexity. Portions of the building remained occupied as office space during construction, requiring careful planning to maintain operations while transforming upper floors into housing.
The Solution
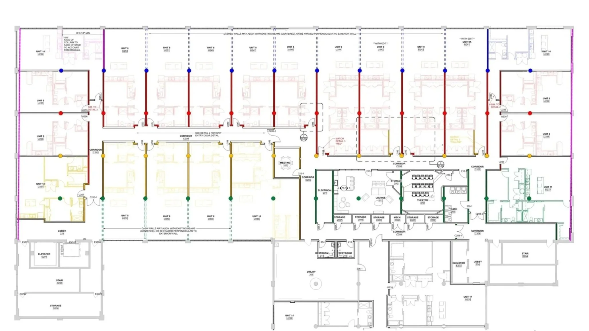
AVID Architects led the adaptive reuse design, converting four stories of the historic BF Goodrich factory into residential housing while preserving its industrial character.
The design balanced historic preservation with modern residential planning. Working alongside a historic preservation consultant, the team aligned the project with the Secretary of the Interior’s Standards for Rehabilitation to support the Ohio Historic Preservation Tax Credit program.
Key historic elements including brick façades, exposed steel columns, concrete slab floors, and large industrial windows were retained wherever possible. The existing steel column grid and expansive floor plates guided apartment layouts, allowing units to align with window openings and maximize natural light.
The project also required careful coordination of new building systems and a phased construction approach, as lower floors of the building remained occupied during the rehabilitation.
The Results
The Goodrich reactivates a key site in Akron’s urban core, blending preservation with modern living.
139 residential units bring new vitality and density to downtown.
Historic character preserved, ensuring the building remains a landmark in the city’s fabric.
Mixed-use amenities support a live-work-play environment.
Tax credit and abatement financing made the project viable and replicable for other Ohio cities.
The project stands as a model of adaptive reuse, showing how industrial legacies can be reimagined to meet today’s housing and community needs.
Behind the Build
Navigating Historic Tax Credits
Historic tax credits can be a powerful tool for revitalizing older buildings, but they introduce strict preservation requirements. For The Goodrich, AVID Architects collaborated closely with a historic preservation consultant to ensure the design met the Secretary of the Interior’s Standards for Rehabilitation.
Defining architectural elements such as brick façades, structural columns, floor systems, and window openings were preserved as part of the building’s historic character. Where replacement was required, new materials were designed to match historic profiles while improving building performance.
Early coordination between the design team, preservation consultant, and development team helped streamline approvals and maintain alignment between preservation goals and project feasibility.
How Structure Shapes Floor Plans in Historic Buildings
Historic industrial buildings often provide advantages for residential conversion. The Goodrich’s steel and concrete structural system, large floor plates, and generous ceiling heights created a strong framework for apartment layouts.
Rather than forcing a conventional residential plan, AVID used the existing column grid to organize circulation and define unit boundaries. Window spacing informed the placement of living spaces and bedrooms, ensuring each unit had access to natural light.
This strategy preserved the building’s historic character while creating efficient, comfortable apartments suited to modern urban living.

